муфени тръби
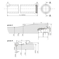
тръби стоманобетонни муфени канализационни с интегриран уплътнител, L=2,5 m – нисконапорни БДС EN 1916 за уплътнители EN 681-1
| номенкл. № | наименование | дължина | диаметър | тегло | клас | налягане |
|---|---|---|---|---|---|---|
| m. /бр. | m. /бр. | т. /бр. | P разр. | |||
| 10100100 | ТСБМК Ф 300 х 2500 , d=75 | 2.50 | 0.30 | 0.592 | 1 | 48.00 |
| 10100300 | ТСБМК Ф 500 х 2500 , d=80 | 2.50 | 0.50 | 0.930 | 1 | 45.00 |
| 10100200 | ТСБМК Ф 400 х 2500 , d=80 | 2.50 | 0.40 | 0.803 | 1 | 53.00 |
| 10100400 | ТСБМК Ф 600 х 2500 , d=85 | 2.50 | 0.60 | 1.318 | 1 | 45.00 |
| 10100500 | ТСБМК Ф 800 х 2500 , d=94 | 2.50 | 0.80 | 2.006 | 1 | 51.00 |
| 10100600 | ТСБМК Ф 1000 х 2500 , d=124 с монтажни анкери | 2.50 | 1.00 | 3.147 | 1 | 53.00 |
| 10100700 | ТСБМК Ф 1200 х 2500 , d=139 с монтажни анкери | 2.50 | 1.20 | 4.308 | 1 | 51.00 |
Тръби стоманобетонни муфени канализационни с интегриран уплътнител L=2,5 m 1.Приложение:Предварително отляти \ТСБМК\ с интегриран гъвкав уплътнител са предназначени за изграждането на отводнителни и канализационни безнапорни и нисконапорни системи за пренос на канализационни, дъждовни и третирани промишлени отпадъчни води. 2.Проектиране:Използването и полагането на тръбите на всеки строеж се извършва по инвестиционен проект-предварително изготвен и утвърден в съответствие със съществуващия законов ред и при спазването на актуалните строителни и нормативни документи. 3.Монтаж:Тръбите се монтират в проектно положение на предварително направена пясъчна възглавница или излят подложен бетон В 15 като ъгълът,който се формира е от 90°-120º.Тръбите се втикват чрез плъзване.Областите, в които се намират уплътнителите се почистват преди сглобяването.Смазката за приплъзване се поставя върху този край на тръбата, в който няма поставен уплътнител т.е. върху бетона. Съединяването на тръбите започва от най–крайната,най-дълбоката част на тръбопрово да. Всяка тръба, особено първата трябва да е добре центрирана,а силата с която става плъзването трябва да бъде внимателно контролирана. Всяка следваща тръба ,която ще се плъзва в предната трябва да е повдигната и да виси свободно. За да се предотврати повреждането на еластомерните уплътнители ,е необходимо да се използват специални уреди. Плъзването на тръбите чрез захващане с багер води до увреждането им. Разстоянието между крайните точки на две тръби трябва да е поне 5 мм. Тръбите за отпадни води в общия случай се свързват по права линия между две шахтови съоръжения. Промяната на посоката ,ако е необходима се извършва от шахтовите съоръжения. Възможно е да се правят извивки по трасето, чрез предварително отлети закривени изделия. Проектното положение на тръбите ,се контролира геодезически. 4.Експлоатация и поддръжка:Проектния експлоатационен срок на тръбите произведени по тоя стандарт е много висок .През експлоатационния период специални грижи за поддържането им не са необходими.
тръби бетонни муфени канализационни с интегриран уплътнител, L=2,5 m - безнапорни БДС EN 1916 за уплътнители EN 681-1
| номенкл. № | наименование | дължина | диаметър | тегло | налягане |
|---|---|---|---|---|---|
| m. /бр. | m. /бр. | т. /бр. | P разр. | ||
| 11100300 | ТБМК Ф 500 х 2500 , d=80 | 2.50 | 0.50 | 0.880 | 40.00 |
| 11100200 | ТБМК Ф 400 х 2500 , d=80 | 2.50 | 0.40 | 0.755 | 43.00 |
| 11100100 | ТБМК Ф 300 х 2500 , d=75 | 2.50 | 0.30 | 0.548 | 40.00 |
| 11100400 | ТБМК Ф 600 х 2500 , d=85 | 2.50 | 0.60 | 1.242 | 40.00 |
| 11100500 | ТБМК Ф 800 х 2500 , d=94 | 2.50 | 0.80 | 1.860 | 41.00 |
| 11100600 | ТБМК Ф1000 х 2500 , d=124 с монтажни анкери | 2.50 | 1.00 | 3.099 | 48.00 |
| 11100700 | ТБМК Ф1200 х 2500 , d=139 с монтажни анкери | 2.50 | 1.20 | 4.131 | 48.00 |
Тръби бетонни муфени канализационни с интегриран уплътнител L=2,5 m 1.Приложение:Предварително отляти ''ТБМК'' с интегриран гъвкав уплътнител са предназначени за изграждането на отводнителни и канализационни безнапорни и нисконапорни системи за пренос на канализационни, дъждовни и третирани промиш лени отпадъчни води. 2.Проектиране:Използването и полагането на тръбите на всеки строеж се извършва по инвестиционен проект-предварително изготвен и утвърден всъответствие със съществуващия законов ред и при спазването на актуалните строителни и нормативни документи. 3.Монтаж:Тръбите се монтират в проектно положение на предварително направена пясъчна възглавница или излят подложен бетон В 15 като ъгълът, който се формира е от 90°-120º.Тръбите се втикват чрез плъзване.Областите, в които се намират уплътнителите се почистват преди сглобяването.Смазката за приплъзване се поставя върху този край на тръбата, в който няма поставен уплътнител т.е. върху бетона. Съединяването на тръбите започва от най–крайната, най-дълбоката част на тръбопровода. Всяка тръба, особено първата трябва да е добре центрирана, а силата с която става плъзването трябва да бъде внимателно контролирана. Всяка следваща тръба ,която ще се плъзва в предната трябва да е повдигната и да виси свободно. За да се предотврати повреждането на еластомерните уплътнители ,е необходимо да се използват специални уреди. Плъзването на тръбите чрез захващане с багер води до увреждането им. Разстоянието между крайните точки на две тръби трябва да е поне 5мм. Тръбите за отпадни води в общия случай се свързват по права линия между две шахтови съоръжения. Промяната на посоката ,ако е необходима се извършва от шахтовите съоръжения. Възможно е да се правят извивки по трасето, чрез предварително отлети закривени изделия. Проектното положение на тръбите ,се контролира геодезически. 4.Експлоатация и поддръжка:Проектния експлоатационен срок на тръбите произведени по тоя стандарт е много висок .През експлоатационния период специални грижи за поддържането им не са необходими.
тръби стоманобетонни муфени двойно армирани за пътни и жп водостоци БДС EN 1916
| номенкл. № | наименование | дължина | диаметър | тегло | налягане |
|---|---|---|---|---|---|
| m. /бр. | m. /бр. | т. /бр. | P разр. |